


JHSSH | 考研教学部

校园学生餐厅设计
2024 南京工业大学初试

校园学生餐厅设计


PART/1
任务书解读

南京工业大学建筑快题考察重点较注重功能的实用性,制图的严谨性,以及建筑与场地关系的理解。因此,对于功能流线的把握,场地开口,制图规范性等要点需要特别注意。本题为校园学生餐厅设计,地形方正,北侧为教学区,南侧为防护林,西侧是围墙和校外商业,东侧为宿舍区,周边环境并不复杂,重难点在于:1.对于餐厅的餐饮功能、厨房功能(包括内部流线)、办公功能等的合理排布,严格按照任务书要求。2.对于场地主入口、次入口、后勤入口以及办公入口设置的考虑。
综合上述考点,我们将从餐饮空间设计要点、场地关系等方面展开分析,得到合理的入口选择、场地布置、功能布局以及形体策略。

PART/2
食堂空间设计要点
食堂设计特点
食堂是指设立于机关、学校和企事业单位内部,供应员工、学生就餐的场所,一般具有饮食食品多样、消费人群固定、供餐时间集中等特点。在设计中应知晓:
1.用餐区域设计应开敞、通达,流线组织便捷、高效,便于阶段性密集人流的疏散。
2.食堂用餐对象较为单一,人数基本固定,用餐时间比较集中,餐桌及座椅的数量和布置方式应综合考虑这些因素。

食堂使用面积测算
功能分区
餐厅区域
座位布局:采用合理的座位布局,保证用餐流畅,避免拥挤。可分为普通就餐区、包厢区、残疾人专用区等。
用餐流线:设计明确的流线,确保客人能够方便找到座位和离开。
景观设计:可以考虑室内绿化或外部景观引入,提升用餐环境的舒适度。
厨房区域
烹饪区:包括炒菜区、烘焙区、蒸煮区等,各功能区分开设置,以避免交叉污染。
准备区:设置洗菜、切菜等准备工作区域,靠近烹饪区,以便于操作。
洗涤区:集中设置洗碗机、洗手池、清洁用品等,保证洗涤工作的高效性和卫生。
存储区:干货区、冷藏区、冷冻区分开,保证不同食材的存储条件。
仓储区域
食品仓库:分为干货仓库和冷藏库,需配备温湿度控制系统,防止食材变质。
非食品仓库:存放餐具、清洁用品等,应与食品仓库分开,防止污染。
员工区域
更衣室:男女员工更衣室分开,配备储物柜和淋浴设施。
休息室:提供舒适的休息环境,配备座椅、饮水机等。
洗手间:设置独立的员工洗手间,保持清洁卫生。

功能示意图(图片来源:建筑设计资料集5)
流线设计
人流流线
顾客流线:从入口到餐厅、餐厅到出口的路径应尽量简洁、明了,避免与员工动线交叉。
员工流线:从仓储到厨房、从厨房到餐厅的路径应畅通无阻,尽量减少中途的停顿和干扰。
物流流线
食材运送:从食材仓储区到准备区、烹饪区的路径应尽量短,避免中途污染。
废物处理:从餐厅、厨房到垃圾存放区的路径应独立,避免影响食品安全。

流线示意图(图片来源:建筑设计资料集5)

PART/3
场地分析
场地条件分析
场地北侧为教学区具有一定人流量,场地东侧为宿舍区,也具有相当的人流量,北侧和东侧为主要人流来源方向,在转角处形成人流交汇,因此在此处应退部分广场设计,进一步吸引人流,创造一个转角活力点。考虑到食堂为公共建筑,其主入口开设在北侧,与教学区公共建筑主入口正对,可形成“公对公”应对态势。后勤入口可设置在西侧,靠近西大门,既不干扰校园主要师生人流,也可方便运输货物。办公入口可设置在南侧。餐饮区与加工区相对应地设置西南侧与东北侧。



PART/4
形体策略
根据上述地形条件,再结合场地环境关系,我们可以考虑以下几种形体策略。
思路一:体块咬合




思路二:单体块做“减法”


思路三:功能集中,形式做变化


PART/5
方案精讲
方案功能集中,采用了L形和U形体块组合的设计手法,其中主要的餐饮大空间被巧妙地卡在U形体块中。这种设计不仅确保了功能使用的合理性和高效性,还在建筑形式上创造了活泼生动的视觉效果。
总平面图

在总平面图上,主入口设置与场地北侧与教学区“公建对公建”,呈对应态势。转角处设置广场空间,并且开设建筑次入口,充分利用转角人流,创造活力点。货物入口置于西侧,办公入口置于南侧,流线区分明确,互不干扰。建筑形体均衡,大空间与小体块合理并置。
效果图

在效果图上,整体建筑造型较为灵动活泼,将大空间与小体块在材质与屋顶高度上作区分,是一种针对大空间设计的另一种造型解答,破解了以往大空间造型敦实的缺点,兼顾了形式与功能。露台、庭院、坡屋顶、室外楼梯、架空、立面卡盒子等等手法,使得效果图造型手法丰富,形式活泼。
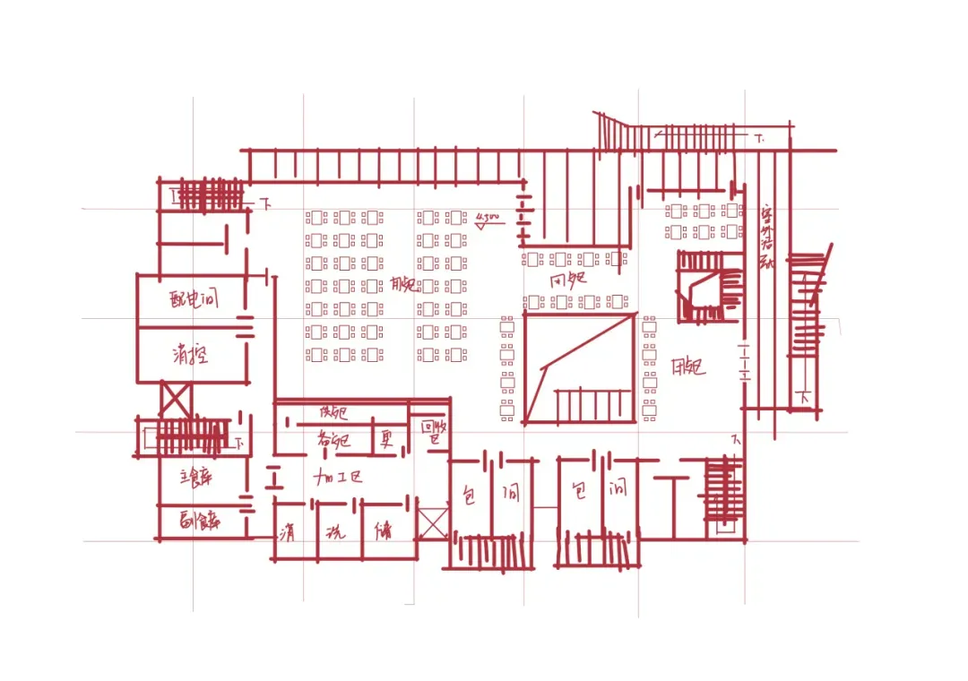
平面图


在首层平面上,场地北侧为主入口,通过就餐人员通过架空层室外路径进入餐厅,灰空间具有一定引导作用。饮品、超市等商业空间也是休闲空间,单独剥离开来,既可以对内也可以对外,设置在转角处人流量最大处。转角处以“广场+休闲空间+露台+水院”的组合,成为激发整个建筑的一个活力点,充分吸引人流。餐饮建筑整体作为大空间处理,厨房流线干净明确,货物出入口与办公入口区分明确。
在二层平面,主要为厨房、供餐区、就餐区以及包间,在二层可以通过露台下到一层广场,也可下到一层轻餐饮区。庭院空间保证了良好的景观视野,露台空间成为吸引人流进入二层就餐的重要设计。包间放置在二层充分保证了私密性。
总体来说,方案兼顾造型美观、功能使用方便、空间体验效果佳,是一种较好的解法,也比较符合快题设计的应试属性。
下期见!


| ![]() |

![]() | ![]() | ![]() |
![]() |
![]() | |
![]() |
|
![]() | ![]() |
![]() | ![]() |
2026合肥全年班课程计划简介
2026理论全年全程班课程安排时间段:理论全年班分4个节点 4月-7月春季网课导学+精讲班15次直播课+暑假面授8月16-26的10天全日制集训+9月-12月秋季理论强化精讲15次直播课+12月预测卷押题;
2026快题全年班课程安排时间段:也分阶段预约,快题方案全年班课程安排 春季4月-7月快题方案网课直播课15次+暑假快题手绘课程或快题方案7月班15到20天+暑假8月快题方案强化班15天集训+国庆班集训10天+9月-12月份秋季快题方案直播课15次评改图图+押题班;
(点击下方蓝色链接查看详细)
![]() | ![]() |
![]() | ![]() |
25年安徽建筑大学建筑学理论专业课,全科导学直播课预约报名中!状元团队全程专职带队理论全年班26年预测押题卷,文末附资料分享!!













![]() | ![]() |
![]() | ![]() |
![]() | ![]() |
![]() | ![]() |
![]() | ![]() |
![]() | ![]() |
![]() | ![]() |
![]() | ![]() |
![]() | ![]() |
![]() | ![]() |
![]() | ![]() |
![]() | ![]() |
![]() | ![]() |
![]() | ![]() |
![]() | ![]() |
![]() | ![]() |
![]() | ![]() |
![]() | ![]() |
真实成绩截图
![]() | ![]() |
![]() | ![]() |
![]() | ![]() |
![]() | ![]() |
![]() | ![]() |
![]() | ![]() |
![]() | ![]() |
![]() ![]() | ![]() |
![]() | ![]() |
![]() | ![]() |
![]() | ![]() |


安徽建筑大学建筑学初试预计过国家线19位+,南工大建筑学最高分392分,苏大353分,苏科381分,等等 其他院校陆续更新中!



(点击图片进链接)










点击下方链接查看详情




01 如何选择院校
- 建筑学针对性考研第一品牌 -
关于择校
是名校优先?
或是专业优先?
亦或者城市选择优先?
专业学长与老师给你专业的答疑!
【建筑学】
1、长按二维码,添加学长微信
2、在线咨询建筑学类院校择校答疑
▼

02 如何加入考研大家庭
- 建筑学针对性考研第一品牌 -
▼目标针对院校▼
东南大学、南京大学、南京工业大学、西安建筑科技大学、长安大学、西安交通大学、郑州大学、华北水利水电大学、河南工业大学、武汉大学、武汉理工大学、华中科技大学、华南理工大学、湖南大学、深圳大学、天津大学、重庆大学、苏州大学、苏州科技大学、中国矿业大学(徐州)、合肥工业大学、安徽建筑大学、安徽理工大学、浙江大学、浙江工业大学、浙江农林大学、等全国知名院校 |
2026建筑学考研各高校考研群
建筑学考研公开课、案例抄绘、软件素材QQ群 | ||
![]() | ![]() | ![]() |
建筑考研公开课群 | 建筑考研抄绘群 | 建筑设计软件资源分享大学 |
江苏省(南京/苏州)建筑学考研交流QQ群 | ||
![]() | ![]() | ![]() |
东南大学 | 南京工业大学 | 南京大学 |
![]() | ![]() | ![]() |
中国矿业大学 徐州 | 苏州大学 | 苏州科技大学 |
安徽省建筑学考研交流QQ群 | ||
![]() | ![]() | ![]() |
合肥工业大学 | 安徽建筑大学 | 安徽理工大学 |
浙江省建筑学考研交流QQ群 | ||
![]() | ![]() | ![]() |
浙江大学 | 浙江工业大学 | 浙江农林大学 |

长按二维码识别关注建筑学考研帮
猛戳阅读原文 快速获取资料!