

免费发放建筑学考研资料分享,定期更新考研动态,包括但不限于快题手绘技法、大师案例抄绘解析、理论绘图题示范、快题方案真题解析公开课等,有考研相关资源需要的可以识别二维码加群获取。

JHSSH | 考研教学部

九华山手绘军团
合肥中心全国营简章(合肥营)

<简介>


安徽建筑学考研,壹匠建筑与九华山手绘军团努力为更广大的考研学员提供更优质的教学服务,不断开拓考研教学模式,完善教学体制,共同打造建筑学考研优质课程;旨在帮助报考合肥工业大学、安徽建筑大学、安徽理工大学、苏州大学、苏州科技大学、中国矿业大学(徐州)、南京工业大学等高校建筑学的学生通过研究生考试。自2015年创办以来,凭借优良的师资力量、高效的教学模式及负责任的态度赢得了广大学生的赞誉!

“不玩文字游戏”
所有成绩均可核实,可查
合肥工业大学连续五年包揽各项 第一名 2025年合肥工业大学建筑学全年班陶同学学硕初试总分359分第一名、理论131分第一名,全年班常同学专硕初试总分377分和学员魏同学专硕初试总分377分并列第一名、理论125分第二名,等前几名好成绩。初试合工大建筑学19人进复试12人,上线率63%以上.2024年合肥工业大学建筑学全年班闫学员学硕初试总分407分第一名,快题138分第一名;全程班李同学学硕总分405分第二名,快题134分第三名;虞同学学硕理论130分第一名、快题127分第四名;夏同学学硕快题135第二名);师同学初试专硕理论117分第一名,陶同学初试专硕快题140分第二名。 [2023年 合肥工业大学建筑学最高分总分358分、快题134分 、快题131、130分等高分不断 进复试名单共22席+(不含单科未过线)初试总分320分以上18+席,恭喜九华山手绘军团学员顺利进复试,] (22年初试程同学总分393分前三名快题138分 第一名、136、135高分,理论126分第一名等高分) (21年初试阮学长总分388分第一名,快题133、131高分,理论108高分) (20年初试杨学长总分394分第一名,王学长理论118分第一名,快题134分第二名) (19年初试朱学长快题134分第一名,张学长理论138分第一名,总分最高分马学长380分) (18年合工大建筑录取10人,囊括学硕总分第一、二名、专硕理论第一、二、六名) 安徽建筑大学初试战绩再次爆表到举世无双 连续六年包揽各项 第一名 2025年安徽建筑大学建筑学全年班贾同学专硕初试总分364分第一名,理论103第一名,全年班董同学专硕初试总分351分第二名,张同学初试快题135分第二名,杨同学理论103分并列第一名,专硕前十名学员占6席位,快题130+6席等前几名好成绩。初试安建大建筑23人进复试19人,有若干同学英语未过线,上线率95%以上。 2024年 安徽建筑大学建筑学李同学初试专硕理论89分第一名,快题137分第二名,杜同学初试专硕理论81分第二名,陈同学初试专硕快题132分第三名,周同学初试学硕理论79分第一名等好成绩。 [2023年初试程同学学硕总分362分第一名,快题138分第一名,胡同学总分355分、施同学总分342分拿下前三名;贺: 2023年初试国同学专硕349分第一名,王同学理论107分第一名包摄学硕和专硕总分第一名、快题第一名、理论第一名等优异成绩.] (22年初试邓同学总分381分第一名,管同学快题140分第一名、逯同学理论111分第一名,快题138分第二名等高分)已知包揽安建大建筑初试总分、快题、理论全第一名,包揽总分第一名、第二名、第三名、第四名、第五名、第六名;包揽快题单项前三名、包揽理论单项前三名等优异成绩; (21年初试包揽总分377分、371分、370分前三名,快题136分第一名,理论118第三名;) (20年初试进复试共18席,最高分339分) (19年初试进复试共6席,最高分311分) (18年跨考学员吴同学初试总分352分第一名,快题127分第一名) |
![]() | ![]() |
![]() | ![]() |
![]() | ![]() |
![]() | ![]() |
合肥校区建筑方案班固定师资介绍 | |
九华山手绘印迹建筑学教研组 | 壹匠建筑考研教研组 |
主讲人: 方老师(快题\理论主讲) 合工大建筑学硕士研究生快题前三(合肥建筑省院主创设计师) 厦大建筑学考研初试总分第二 浙江华汇工程设计集团助理建筑师 所带学员5年内累计共培养300余名建筑学研究生,快题状元导师|理论状元导师, 张老师(理论主讲) 合工大建筑学考研理论初试第一名138分(有史以来最高分)快题第四 朱老师(快题主讲)|王老师(快题主讲) 合工大19年建筑学134分初试考研快题第一名 合工大20年建筑学134分初试考研快题第二名 姜老师(理论主讲) 苏大建筑学考研初复理论第一名,快题132 吴老师(理论主讲) 安建大建筑学考研初复试总分第一,快题理论第一 华老师(建筑历史理论主讲) 安建大建筑学考研初试理论第一, (评图老师往期历届快题前三名,再此不一一列举) 朱老师(设计手绘主讲) 资深建筑学快题设计手绘表达主讲, | 主讲人:壹匠团队+高分学长学姐参与评改图 ·Y学长:西建大硕士,职业建筑师,六年快题教学经验,所带学生遍及各大热门考研院校; ·W学姐:西建大硕士,五年的理论教学经验,国家注册建筑师,壹匠快题兼理论主讲; ·X学长:工大专硕第二,理论124,实践能力极强,竞赛奖项颇丰,壹匠快题兼理论主讲; ·Z学长:工大硕士,壹匠理论主讲,理论研究扎实,善于沟通,思路开阔; ·周学长:安建大总分第一,设计能力强,知识积累丰富,善于细节把控; ·张学长:苏大硕士,善于体块造型设计,图纸表达能力强; ·G学长:苏大快题第一,对苏大快题特点了如指掌,擅长解题策略和分析; ·L学姐:苏大总分第六,快题前三,综合实力选手,均衡发展的典范。 轩轩学长:国内明星事务所建筑师,工大专硕第二,思维开阔,实践能力极强,竞赛奖项颇丰,壹匠快题兼理论主讲 大王学姐:国家注册建筑师,省内高校教师,西建大硕士,七年理论教学经验,壹匠快题兼理论主讲 六六老师:工大初试快题第一,有着非常完整的一套快题设计方法体系,屡试不爽,壹匠快题主讲 |
舟子墨学长 (理论技术顾问) 九华山手绘印迹理论课教材主编编写人 合工大建筑学初复试总分第一; 某大型建筑设计院建筑师; 国家注册规划师 | |
| 除以上主讲人外,届时还会邀请其他状元高分学长学姐前来专业交流、传授经验! |
合肥工业大学建筑学考研全年课程体系
/ 2026年春季理论+快题方案网课直播课 /
班种一:2026年春季理论D1网课班
授课方式:网课 (满5人开班)
学费:¥2700 / 课时:3~7月每周末


合工大参考资料一共九份。其中《公共建筑设计原理》-刘云月三课时[秋季];《规划原理》五课时[秋季]建筑结构选型[秋季]:《绿色建筑设计原理》2课时居住建筑原理》1课时《工大本科讲义八大章》8课时[暑假]:[建筑热点话题]五课时[秋季]具体春季上课根据课程进度结合大纲安排课程计划


| 2026春季建筑理论\快题方案班班次 | |
|---|---|
| 春季课程设置 | 原价及优惠政策 |
| 建筑理论D1班 | 2700RMB |
| 建筑快题方案基础提升C班 | 3000RMB(原价3400) |
| 节点优惠 | 2月10日前预约优惠500RMB; 2月20日前预约优惠400RMB; 2月28日前预约优惠300RMB 3月10日前预约优惠200RMB; 3月15日前预约优惠100RMB; |
| 团优惠 | 2人团报优惠¥100/人; 3人-5人 团报优惠¥150/人 6-8人团报优惠¥200/人; |
| 老学员 | 往期老学员续春季快题方案C原价75折起 前10名老学员预约春季理论D直接优惠700RMB; |
/2026年暑假建筑学手绘\快题\理论集训班次 /
班种二:快题方案C班(C1快题方案基础提升\C2快题方案定向强化班):
2026暑假快题基础提升C1班大纲
学费:¥3400 / 日期:7月15日-7月30日
主要针对各院校建筑学与城乡规划专业研究生考试的专业课辅导,包括快题和理论。
快题辅导主要是针对本校历年真题及其他高校优秀快题真题和实践项目的练习与讲解,快速夯实学生的快题设计基础。
理论辅导结合招生考试科目大纲知识点与历年真题的讲解,并通过对课外知识点的拓展,帮学生理清复习思路,掌握复习与解题技巧。

本班以快速提升方案能力为主,旨在强化学生的设计基本知识和技能,配合必要的表现技法指导,实现快题水平的快速提升。
①建筑:文化展览建筑、民宿住宅建筑、校园建筑、体育建筑、售楼部建筑、旅游度假建筑、改扩建建筑等。
②规划:校园规划、开发式小区规划、城市商业区、传统历史街区、中心商务区、体育运动公园、旅游风景区、城市设计、控制性详细规划等。
(注:选取10份快题任务书,暂定本校6张,外校4张,具体视实际情况而定)
快题基础C1班 暑假7月15-30、8月1-15,每期15天,适合所有建筑类院校。以快速提升方案能力为主,旨在强化学生的设计基本知识和技能,配合必要的表现技法指导,全面夯实快题基本功,实现快题水平的快速提升。
2026暑假快题定向班C2班课程大纲
学费:¥3400 / 日期:8月1日-8月15日

第1天:上午讲解快题基础理论知识,下午有个3小时快题小测验,摸清学员快题基础,晚上讲解。
第2—5天:针对基础薄弱的同学,精选优秀快题进行抄绘、分析,讲授快题入门知识;基础较好的同学可直接练习完整快题。
第6—15天:所有同学均练习完整快题,第一天画图,时间尽量限定在10小时内,晚上集中评图。期间针对快题方案、手绘技法表现及实际工程项目开展专题讲座,
具体课程大纲授课老师现场根据大家基础针对安排进度;
注:快题班期间会组合一次建筑与规划认知学习,带领大家参观附近的校园或建筑;另外,本班提供画板和丁字尺,方便学员)
快题基础C2班 暑假7月15-30、8月1-15,每期15天,适合所有建筑类院校。以快速提升方案能力为主,旨在强化学生的设计基本知识和技能,配合必要的表现技法指导,全面夯实快题基本功,实现快题水平的快速提升。
关于开课日期
上述开课日期为参考去年开课日期,今年日期可能有所变动
九华山手绘考研将在学员群内提前一个月通知具体开课日期
开课日期的确定方式为统计全国高校的暑假放假日期后与课程学员商定
学员可根据自己时间选择第一第二期课程,也可参加第一期快题基础+第二期理论定向
班种三:建筑理论D班:

理论班主要以梳理大纲知识,拓展课外知识,传授复习经验及讲解历年真题为主,根据近些年理论考试的考察要求,授课内容绝不拘泥于课本,而是最大化拓展学员的知识面,课后会有相应的主观题测试。每个理论班学员会拥有一本印迹独家整理的、最新版的理论资料书,300+页、40余万字,方便学员复习记忆。
建筑学暑期理论D2(线下)课程大纲

(8月集训10天全日制线上线下同步集训)
结合资料梳理大纲知识,拓展课外知识,传授复习经验及讲解历年真题为主,根据近些年理论考试的考察要求,授课内容绝不拘泥于课本,而是最大化拓展学员的知识面,课后会有相应的主观题测试。
每个理论班学员会拥有一本印迹独家整理的、最新版的理论资料书,300+页、40余万字,方便学员复习记忆。
(赠送内部教材书籍见下图)


| 2026年暑假建筑学手绘\快题\理论集训班次 | |
|---|---|
| 暑假课程设置 | 课程原价及优惠 |
| 建筑手绘全程班 | 3400RMB |
| 建筑方案C1\C2 | 3400RMB |
| 建筑理论D2 | 2700RMB |
| 节点月份优惠 | 3月15之前报名优惠500RMB 4月15之前报名优惠400RMB 5月15之前报名优惠300RMB 6月15之前报名优惠200RMB 开课之前报名优惠100RMB |
| 团优惠 | 2人团报优惠¥100/人; 3人-5人 团报优惠¥150/人 6-8人团报优惠¥200/人; |
| 老学员 | 往期老学员续暑假快题方案C原价75折起 前10名老学员预约暑假理论D直接优惠700RMB; |
/ 2026年秋季快题方案+理论定向班 /
秋季(9月-12月)是考研前,最为重要的一个时间段,众所周知12月中旬,就是大家奋力跃龙门的时刻,上半年没好好复习的你,秋季和国庆课程是你最后的机会!更有针对性提升快速设计能力理论专练设置于国庆课程中!
班种一:2026年秋季快题网课班C3班专练课程
学费:¥3000(原价3400) / 日期:9月20日-12月14日 (满5人开班)
(👇点击放大查看原图)

快题方案C3班为每年9月中旬-考前12月中旬,持续12周次课程,训练内容围绕合工大快题真题特点和趋势精选同类型任务书进行解析训练,触类旁通,举一反三以强化学员设计能力,报名者需有较好的快题基础并且能够独立出方案。
班种二:2026年秋季理论定向班D3班
学费:¥2700 / 日期:9月20日-12月14日 (满5人开班)


班种三:2026秋季国庆快题冲刺C4班
学费:¥3000 / 日期:10月01日-10月10日
第1天(10.01 ):针对快题中的场地设计板块进行讲解、训练,归纳场地的类型、要素内容及相应的处理手法。
第2天(10.02):针对快题中的平面设计板块进行讲解、练习。
第3天(.10.03 ):针对建筑造型及空间设计进行解析、归纳,如:入口、门厅、庭院、中庭等空间的设计,徽派建筑元素在造型中的应用)。
第4—10天(.10.04—10.10):依次对文化展览、民宿住宅、校园、体育、旅游度假、改扩建、绿色建筑等快题类型(大概率考察)进行练习和讲解。一天一张,白天画图,晚上集中讲解!注:期间针对快题考察方向分析、手绘技法表现及实际工程项目开展专题讲座。
授课目标:国庆节建筑学快题强化班主要针对需要强化提升快题水平的考研学生,采取,小班面授((12人)的教学方式,在短期内快速提升方案水平、表现技法。授课内容:通过对历年真题的总结,主要对以下大概率考察到的快题任务进行专项练习:文化展览建筑、民宿住宅建筑、校园建筑、体育建筑、旅游度假建筑、改扩建建筑、绿色建筑等。注:选取7份快题任务书,暂定本校4张,外校3张,具体视实际情况而定。
| 2026建筑快题\理论定向班次 | |
|---|---|
| 秋季课程设置 | 课程原价及优惠 |
| 建筑快题方案C3班 | 3000RMB(原价3400) |
| 建筑理论定向D3班 | 2700RMB |
| 国庆定向冲刺班C4班 | 3000RMB |
| 节点优惠 | 8月1之前报名优惠500RMB 8月16之前报名优惠400RMB 9月1之前报名优惠300RMB 9月11之前报名优惠200RMB 9月20之前报名优惠100RMB |
| 团优惠 | 2人团报优惠¥100/人; 3人-5人 团报优惠¥150/人 6-8人团报优惠¥200/人; |
| 老学员 | 往期老学员续秋季快题方案C原价75折起 前10名老学员预约秋季理论D直接优惠700RMB; |
2026年九华山手绘(合肥校区)全年班课程大纲及优惠政策

报名咨询:
1.转发本文到朋友集赞8个,赠送一套价值120RMB包豪斯灰色马克笔一套(保留至课程结业后)
2.扫描下方二维码,添加老师好友,发集赞截图给九哥!

或加QQ了解更多课程
QQ:1179942534
2026合肥全年班课程计划简介
全年班课程计划简介
2026理论全年全程班课程安排时间段:理论全年班分4个节点 3月-7月春季网课导学+精讲班15次直播课+暑假面授8月16-26的10天全日制精讲定向班集训+9月-12月秋季理论强化精讲直播课15次直播课+12月预测卷押解析班(点击下方蓝色链接查看详细)
2026快题方案全年班课程安排时间段: 春季4月-7月快题方案网课直播课15次精讲+暑假快题方案强化提升班7月15天集训+8月快题方案面授定向强化班15天集训+国庆班集训10天定向冲刺班\9月-12月份秋季快题方案定向冲刺班,直播课15次直播课评改天图+快题方案预测押题解析班;
![]() | ![]() |
(注:资料书不单独外卖,每年更新理论书籍资料)
【一年之计在于春】25春季建筑理论基础导学直播课占位中!建筑理论考研复习一周导学直播课,看书复习要把时间花在刀刃上,少走弯路!
![]() | ![]() |
【合肥建筑考研】2026年初试安徽建筑大学 建筑学考研初试攻略,快题+理论定向班集训简介 (内含初试理论笔记资料赠送)
合工大(建筑与规划):公共建筑原理(10课时),住宅建筑原理(4课时),中外建筑史(4课时),绿色建筑、建筑热点话题普利兹克奖得主系列(6课时),国内著名建筑师专题(4课时),城市规划原理(14课时),建筑构造上(2课时),徽派建筑等专题(6课时),历年真题解析(6课时)
安建大建筑学:公共建筑原理(16课时),中外建筑史(20课时),
住宅建筑史(4课时),城市规划原理(4课时),民用建筑设计通则(4课时),徽派建筑专题(4课时),其他课外专题(4课时
九华山手绘军团建筑学理论班寒暑假班课程书籍
最新更新版



方案班赠送对应班次书籍教材
![]() | ![]() |
![]() | ![]() ![]() |
![]() | ![]() |
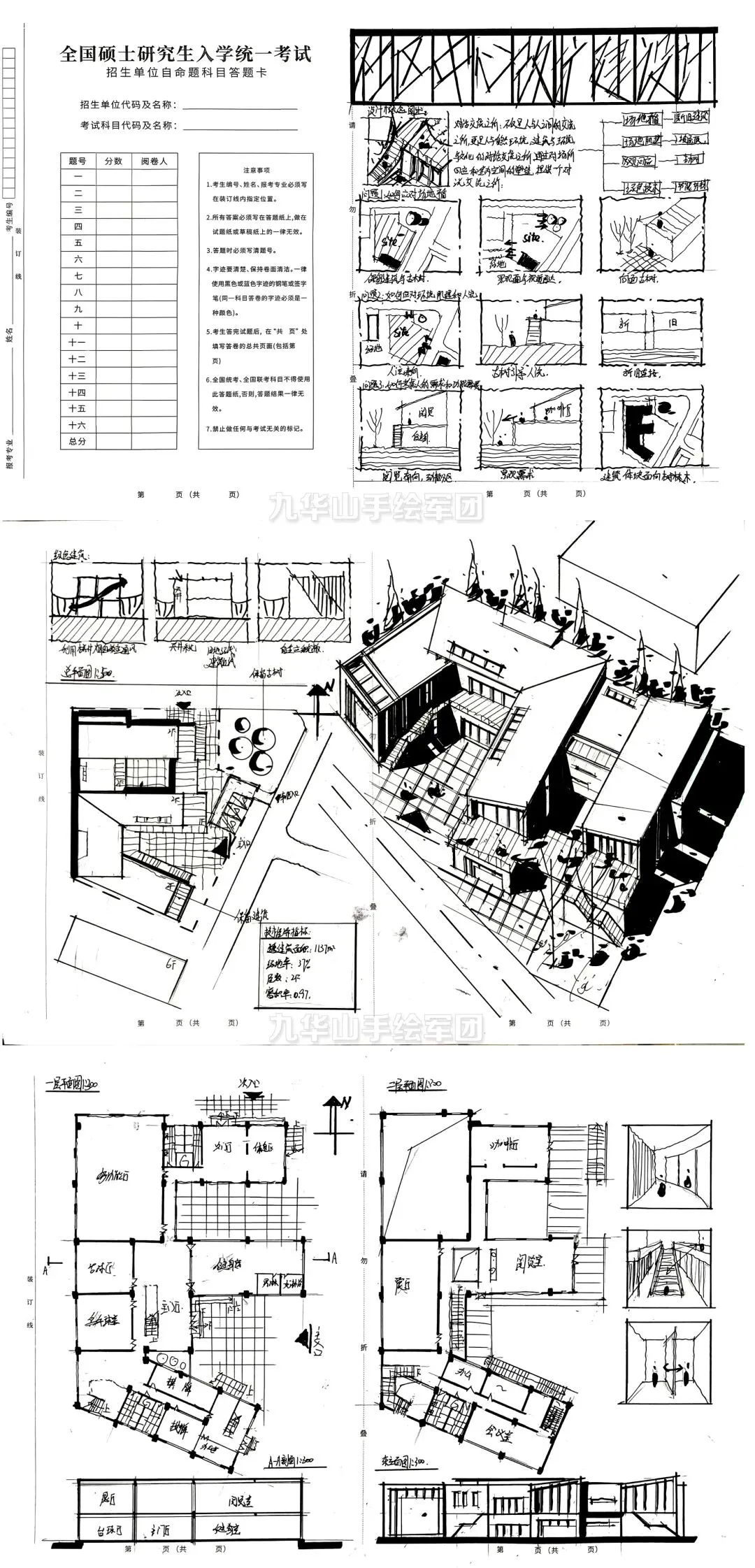
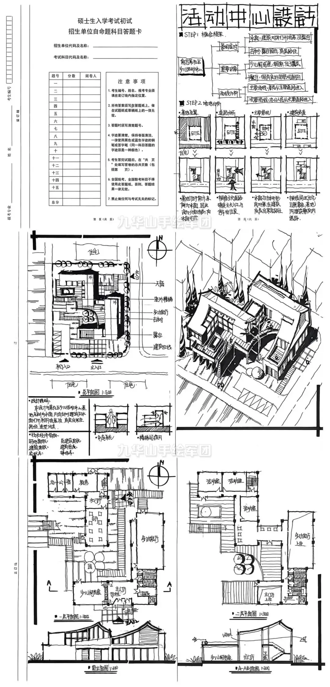
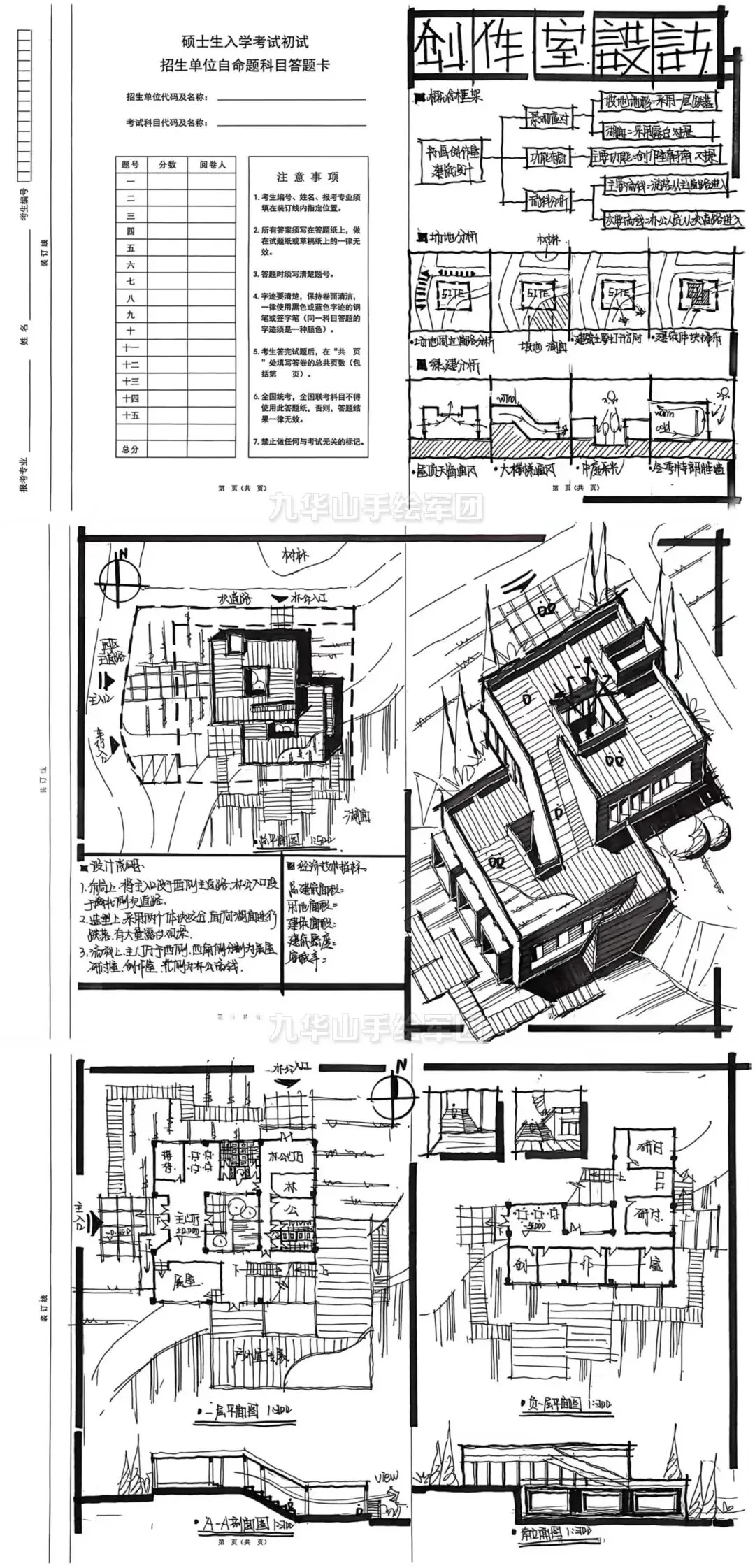
【往期建筑快题方案学员作业回顾】
![]() | ![]() |
![]() | ![]() |
![]() ![]() | ![]() ![]() |
![]() | ![]() |
![]() | ![]() |
![]() | ![]() |
![]() | ![]() |
![]() | ![]() |
![]() | ![]() |
![]() | ![]() |
![]() | ![]() |
![]() | ![]() |
![]() | ![]() ![]() |
![]() | ![]() |
![]() | ![]() |
![]() | ![]() |
![]() | ![]() |
![]() |
![]() | ![]() | ![]() |
![]() | ![]() | ![]() |
![]() | ![]() | ![]() |
![]() | ![]() | ![]() |
![]() | ![]() | ![]() |
![]() | ![]() | ![]() |
![]() | ![]() | ![]() |
![]() | ![]() | ![]() |
![]() | ![]() | ![]() |
![]() | ![]() | ![]() |
![]() | ![]() | ![]() |
![]() | ![]() | ![]() |
![]() | ![]() | ![]() |
![]() | ![]() | ![]() |
相关阅读
(点击图片进链接)
点击下方链接查看详情




01 如何选择院校
- 建筑学针对性考研第一品牌 -
关于择校
是名校优先?
或是专业优先?
亦或者城市选择优先?
专业学长与老师给你专业的答疑!
【建筑学】
1、长按二维码,添加学长微信
2、在线咨询建筑学类院校择校答疑
▼

02 如何加入考研大家庭
- 建筑学针对性考研第一品牌 -
▼目标针对院校▼
东南大学、南京大学、南京工业大学、西安建筑科技大学、长安大学、西安交通大学、郑州大学、华北水利水电大学、河南工业大学、武汉大学、武汉理工大学、华中科技大学、华南理工大学、湖南大学、深圳大学、天津大学、重庆大学、苏州大学、苏州科技大学、中国矿业大学(徐州)、合肥工业大学、安徽建筑大学、安徽理工大学、浙江大学、浙江工业大学、浙江农林大学、等全国知名院校 |
2026建筑学考研各高校考研群
建筑学考研公开课、案例抄绘、软件素材QQ群 | ||
![]() | ![]() | ![]() |
建筑考研公开课群 | 建筑考研抄绘群 | 建筑设计软件资源分享大学 |
江苏省(南京/苏州)建筑学考研交流QQ群 | ||
![]() | ![]() | ![]() |
东南大学 | 南京工业大学 | 南京大学 |
![]() | ![]() | ![]() |
中国矿业大学 徐州 | 苏州大学 | 苏州科技大学 |
安徽省建筑学考研交流QQ群 | ||
![]() | ![]() | ![]() |
合肥工业大学 | 安徽建筑大学 | 安徽理工大学 |
浙江省建筑学考研交流QQ群 | ||
![]() | ![]() | ![]() |
浙江大学 | 浙江工业大学 | 浙江农林大学 |
陕西省建筑学考研交流QQ群 | ||
![]() | ![]() | ![]() |
西安建筑科技大学 | 长安大学 | 西安交通大学 |
河南省建筑学考研交流QQ群 | ||
![]() | ![]() | ![]() |
郑州大学 | 华北水利水电大学 | 河南工业大学 |
北京天津河北建筑学考研交流QQ群 | ||
![]() | ![]() | ![]() |
北京建筑大学 | 北京工业大学 | 天津大学 |
湖北省建筑学考研交流QQ群 | ||
![]() | ![]() | ![]() |
华中科技大学 | 武汉大学 | 武汉理工大学 |
西南地区建筑学考研交流QQ群 | ||
![]() | ![]() | ![]() |
重庆交通大学 | 重庆大学 | 西南交通大学 |

长按二维码识别关注建筑学考研帮
猛戳阅读原文 快速加入团咨询群!